Machbarkeitsstudien von Neubauten oder Umbauten

Wenn ein Kirchenvorstand eine Kirche, ein Gemeindehaus oder ein Pfarrhaus neu bauen oder umbauen möchte und das Vorhaben finanzierbar ist, sind wir gern bereit, eine Machbarkeitsstudie zu erstellen, sofern unsere Kapazitäten es erlauben.

Es werden die planungs- und baurechtlichen Gegebenheiten recherchiert. Dann wird auf der Grundlage des Raumprogramms ein Vorentwurf erarbeitet.

Zu dem Vorentwurf kann der Bruttorauminhalt ermittelt und eine grobe Kostenschätzung erstellt werden.

Neue Gemeinderäume in Hessisch Oldendorf

Umbau des Gemeindehauses in Estorf

Einbau und Anbau von Gemeinderäumen in/an die Kirche in Adenstedt (KK Peine)

An- und Einbau von Gemeinderäumen an/in die Trinitatiskirche in Hannover-Misburg

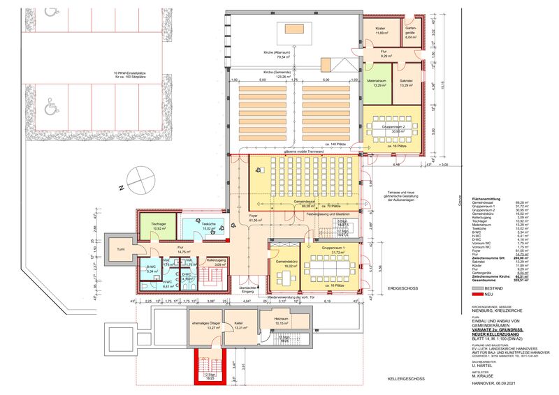
Einbau und Anbau von Gemeinderäumen in/an die Kreuzkirche in Nienburg

Gemeindehaus-Neubau in Adenstedt (KK Peine)

Pfarrhaus-Neubau in Bad Nenndorf

Anbau von Gemeinderäumen an die St. Liborius-Kirche in Heinsen

Gemeindehaus-Neubau in Raddestorf

Gemeindehaus-Neubau in Rinteln Nikolai

Gemeindehaus-Neubau in Neustadt Johannes

An- und Einbau von Gemeinderäumen an/in die St. Petri-Kirche in Flegessen

Anbau von Gemeinderäumen an die St. Michael-Kirche in Letter